Alassio – Nuovi Appartamenti Vista Mare
Prezzo:
Descrizione
ALASSIO – NUOVI APPARTAMENTI VISTA MARE
Nuovo progetto residenziale ad Alassio: appartamenti di varie metrature in posizione dominante, con splendida vista mare, terrazzi vivibili e giardini privati.
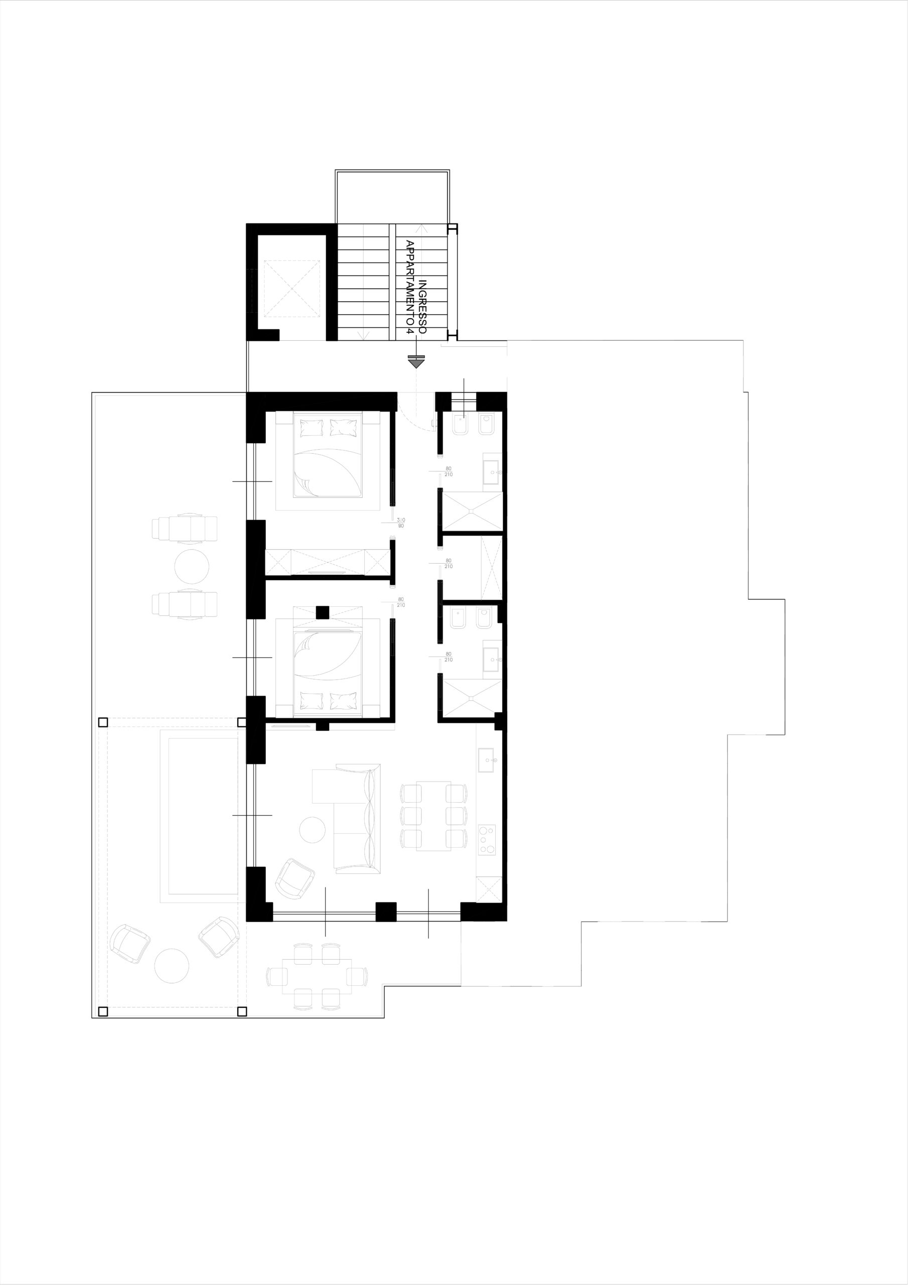
Proponiamo un appartamento composto da tre locali, composto da un ampio soggiorno con cucina a vista, due spaziose camere da letto e due bagni. Inoltre, è dotato di un terrazzo perfetto per godere di piacevoli momenti all’aperto e ammirare la vista panoramica sulla città.
L’impianto di riscaldamento è autonomo e utilizza aria o energia elettrica come combustibile, garantendo il massimo comfort e risparmio energetico.
Gli infissi e le finestre sono in alluminio, garantendo una buona tenuta termica e acustica.
La palazzina è composto da un totale di quattro piani con ascensore, garantendo tranquillità e privacy ai suoi abitanti
Possibilità di acquistare box auto e posti auto.
Non perdere l’opportunità di acquistare questo splendido tre locali in una delle zone più richieste di Alassio, perfetto per chi cerca un’abitazione moderna e confortevole in una delle più belle località della riviera ligure.


