Alassio – Nuovi Appartamenti Vista Mare!
Prezzo:
Descrizione
ALASSIO – NUOVI APPARTAMENTI VISTA MARE
Nuovo progetto residenziale ad Alassio: appartamenti di varie metrature in posizione dominante, con splendida vista mare, terrazzi vivibili e giardini privati.
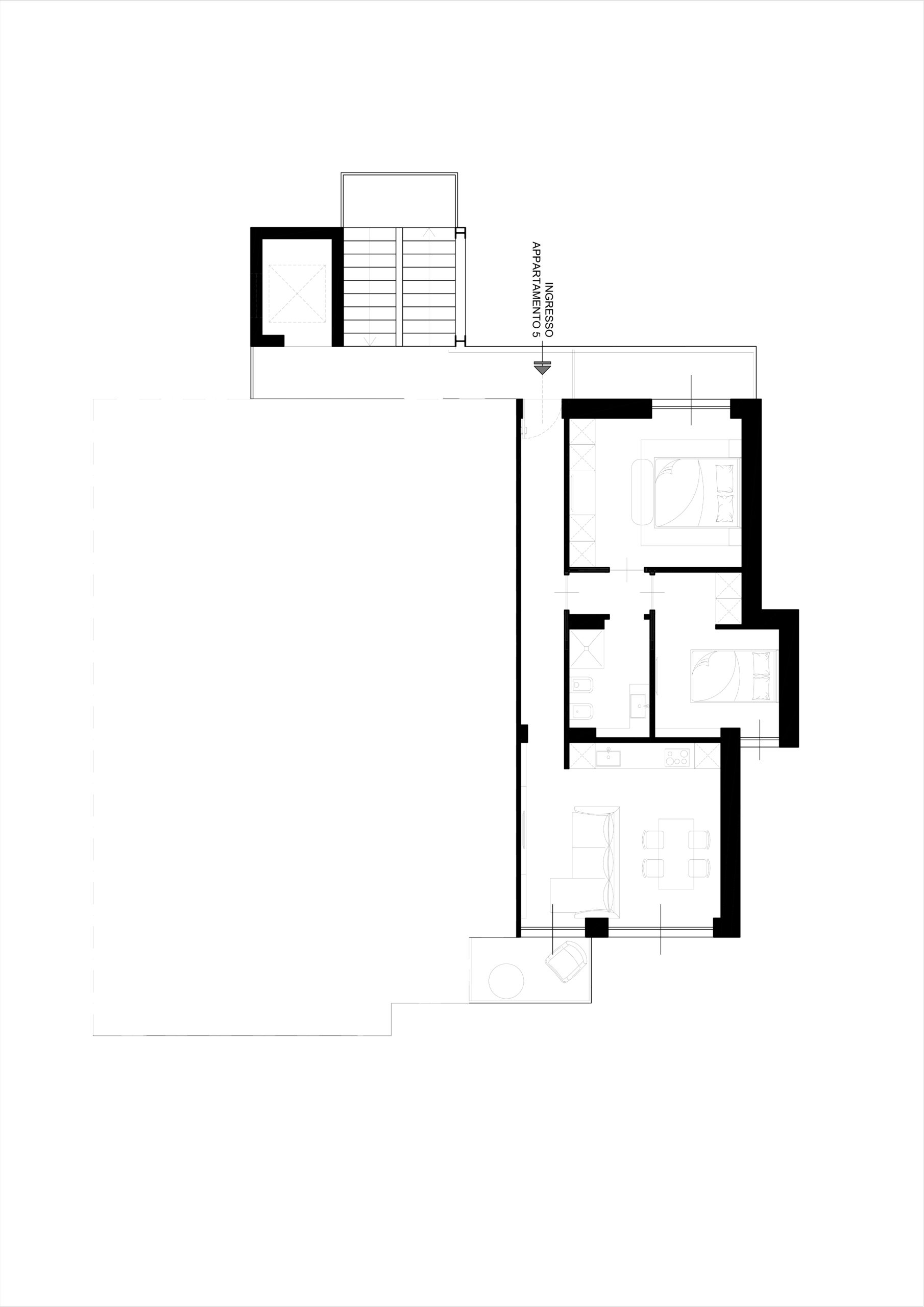
Proponiamo un appartamento composto da tre locali, composto da soggiorno con cucina a vista, due camere da letto, un bagno e un balcone.
L’impianto di riscaldamento è autonomo e utilizza aria o energia elettrica come combustibile, garantendo il massimo comfort e risparmio energetico.
Gli infissi e le finestre sono in alluminio, garantendo una buona tenuta termica e acustica.
La palazzina è composto da un totale di quattro piani con ascensore, garantendo tranquillità e privacy ai suoi abitanti
Possibilità di acquistare box auto e posti auto.
La posizione, la qualità dei materiali e il design moderno rendono questo appartamento un’ottima opportunità per chi desidera una casa di prestigio ad Alassio.


