Alassio – Nuovi Appartamenti Vista Mare!
Prezzo:
Descrizione
ALASSIO – NUOVI APPARTAMENTI VISTA MARE
Sulla prima collina: vivi l’emozione di casa con vista!
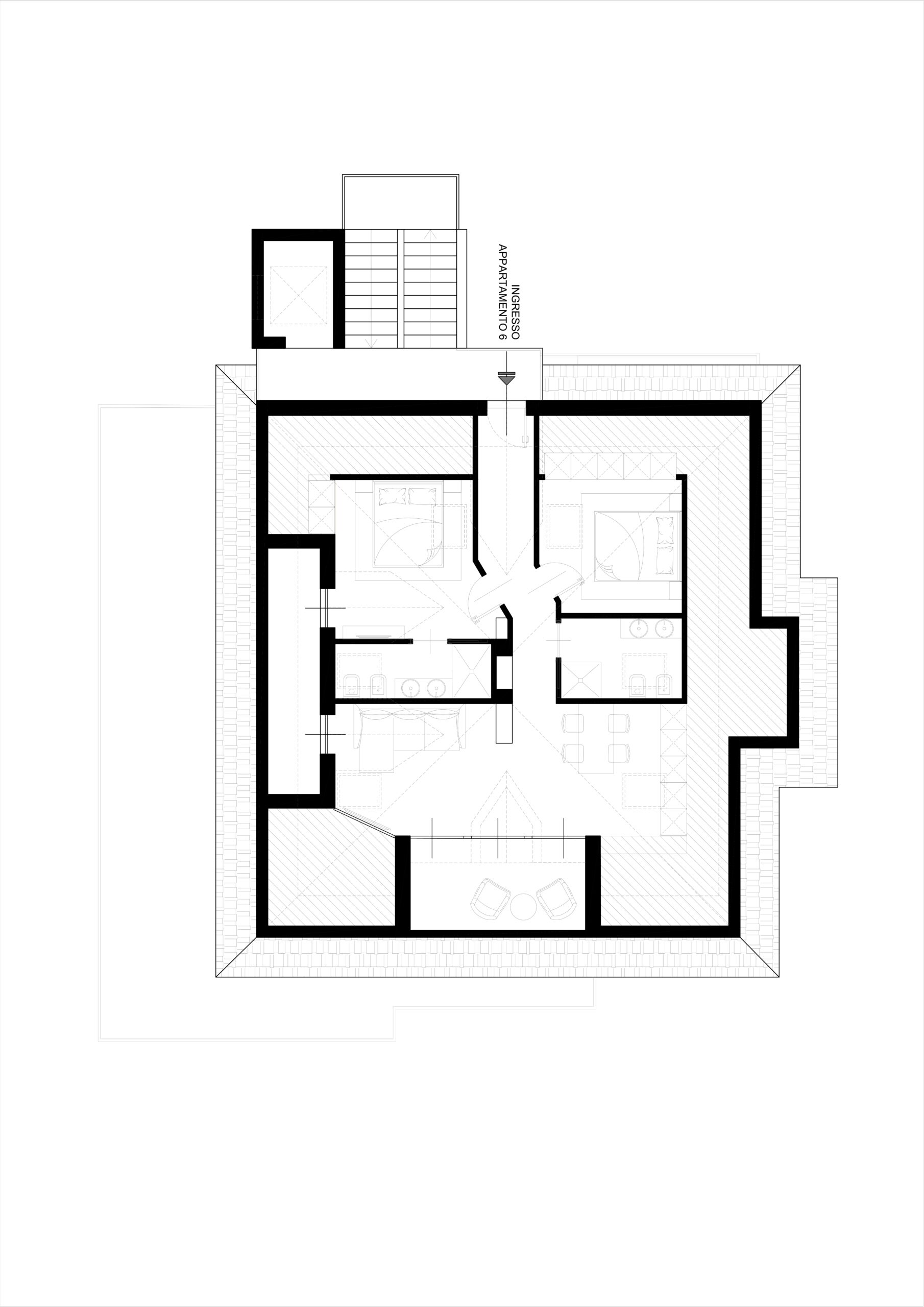
In una tranquilla zona collinare, proponiamo un ampio appartamento di 104 metri quadrati, all’ultimo piano di un caseggiato oggetto di una completa ristrutturazione dotato di ascensore.
La disposizione degli spazi interni è ottimale: l’appartamento è composto da tre luminosi locali, un ampio soggiorno con cucina a vista, due ampie camere da letto, due bagni, un balcone e un terrazzo.
Gli infissi e le finestre sono in alluminio per garantire un’ottima insonorizzazione e isolamento termico.
Dal soggiorno si accede ad un terrazzo, ideale per godere di momenti di relax all’aperto, il riscaldamento è autonomo e utilizza come combustibile aria ed elettricità, garantendo bassi costi di gestione e un’ottima efficienza energetica.
L’appartamento si trova all’ultimo piano garantendo una piacevole vista mare panoramica e una maggiore privacy.
Una soluzione ideale per chi cerca un appartamento moderno e confortevole in una zona residenziale di prestigio.


