Grande Appartamento Soleggiato Zona San Rocco

Immobile ID: T-1368
466
Prezzo:
370.000 €

Descrizione

Grande Appartamento Soleggiato con Terrazzini Privati

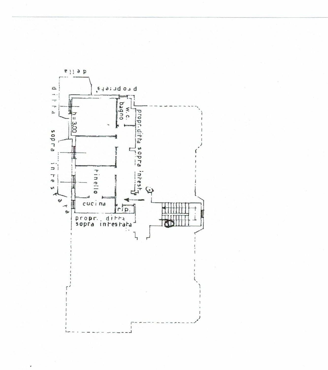
Superficie: 95 mq

Piano: Primo, angolare, con vista aperta e ottima esposizione al sole

Riammodernato: Palazzotto completamente rinnovato, in una zona

residenziale tranquilla, circondato dal verde della pre-collina alassina

Comodità: Posto auto privato

Posizione ideale: Ben collegato sia al centro di Alassio che alle

splendide spiagge

Gli Interni:

Ingresso di disimpegno per un accesso diretto e confortevole

Soggiorno living spazioso con accesso al primo terrazzino, perfetto per

godersi l’aria aperta

Cucinotta separata e ben organizzata

Camera matrimoniale luminosa e ampia

Seconda camera di oltre 20 mq, anch’essa con terrazzino privato

Bagno finestrato, completo e funzionale

Un’oasi di tranquillità, immersa nel verde ma a pochi passi dal cuore

pulsante di Alassio e dalle sue incantevoli spiagge. Perfetta come prima

casa o come rifugio per le tue vacanze!

Contattaci subito per maggiori informazioni e per prenotare una visita.

Non perdere l’opportunità di scoprire questa splendida proprietà!

Caratteristiche

Dettagli
Dimensione: 95 m2
Arredato: si
Camere: 2
Bagni: 1
Piano: 1
Servizi
Riscaldamento: Autonomo
classificazione energetica: G 110,60 KWh/mq anno
Caratteristiche esterne
Posto auto: condominiale

Planimetrie

Posizione

Via Maiolo 11
Alassio (SV) Alassio 17021 (SV)
Prezzo:
370.000 €

Falanga Immobiliare

View my immobili

Prenota una visita

Fissa un appuntamento, il nostro staff è a tua disposizione, verrai ricontattato al più presto da un nostro incaricato.