Trilocale in Vendita nel centro storico di Alassio

Immobile ID: TF-167
589
Prezzo:
430.000 €

Descrizione

Trilocale in Vendita ad Alassio – Ristrutturato nel Centro Storico, a Due Passi dal Mare

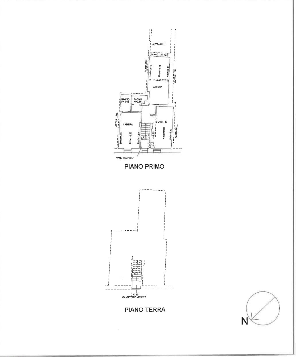
Nel cuore del centro storico di Alassio, in una delle zone più prestigiose e richieste della città, proponiamo in vendita elegante trilocale completamente ristrutturato, situato al primo piano di una palazzina di tre piani, in ottime condizioni.

L’appartamento in vendita ad Alassio centro ha una superficie di circa 65 mq ed è composto da:

  • Soggiorno con cucina a vista, perfetto per momenti di convivialità
  • Due camere da letto accoglienti
  • Due bagni moderni, finemente rifiniti e completi di ogni comfort

Grazie alla ristrutturazione recente, l’immobile offre un ambiente moderno, arredato con gusto e dotato di infissi in alluminio che assicurano luminosità e ottimo isolamento termico-acustico.

Il comfort abitativo è garantito dalla presenza di aria condizionata e riscaldamento autonomo, per vivere l’appartamento tutto l’anno nel massimo benessere.

La posizione strategica consente di raggiungere comodamente a piedi le spiagge di Alassio, il lungomare, i negozi, i ristoranti e tutti i servizi essenziali.

Questa è la soluzione ideale per chi cerca un trilocale in vendita nel centro di Alassio, pronto da abitare, perfetto come prima casa, casa vacanza o investimento per affitti turistici.

Contattaci per maggiori informazioni o per organizzare una visita.

Caratteristiche

Dettagli
Dimensione: 65 m2
Arredato:
Camere: 2
Bagni: 2
Anno di costruzione: 1900
Piano: primo
Ristrutturato:
Servizi
Riscaldamento: Autonomo
Aria Condizionata:
Ascensore: No
Classificazione energetica A 75,50 kWh/mq anno
Caratteristiche esterne

Planimetrie

Posizione

via Vittorio Veneto, 95
Alassio (SV) Alassio (SV)

Nelle vicinanze:

Nelle vicinanze di questo immobile puoi trovare:
spiagge, negozi, bar, ristoranti
Prezzo:
430.000 €

Falanga Immobiliare

View my immobili

Prenota una visita

Fissa un appuntamento, il nostro staff è a tua disposizione, verrai ricontattato al più presto da un nostro incaricato.